НАЦИОНАЛЕН СОЈУЗ НА ЛИЦА СО ТЕЛЕСЕН ИНВАЛИДИТЕТ НА МАКЕДОНИЈА     

Mobile menu

1Во Република Македонија, согласно процентот на светската здравствена организација, се претпоставува дека околу 250.000 лица се соочуваат со некаков вид на инвалидитет. Се претпоставува дека околу 0,1% од популацијата се со потежок инвалидитет, непокретни и се движат со инвалидска количка или нешто повеќе од 2.000 лица.

Од таа причина за време на проектирање на  згради, треба да се овозможи станот, заедно со непосредното опкружување (паркинг простор, рампи за премостување на надворешни бариери, лифтови за премостување на висински бариери), односно севкупниот животен простор да се испланира флексибилно како би им се овозможило на лицата со инвалидност со намалена покретливост во најголема можна мера независно и самостојно живеење, непречен пристап, движење, становање и одмор во станот на еднаква основа со другите граѓани.

Лицата со инвалидност имаат право на удобен, функционален и убав дом за живеење.Во овој пример вниманието ќе го посветиме на лицата кои се движат со инвалидска количка, како најзависни лица на кои архитектонските бариери, тесни врати и неплански тесен простор во станот им предизвикуваат пречки за самостојно живеење.

Просечна димензија на инвалидски колички е 70 х 120 цм, додека за нивно вртење во круг е потребен простор со дијаметар од 150цм. Висина која максимално може да ја допре лице во инвалидска количка е 180м, додека ширина 60цм.

За совладување на висински бариери до станот до 120цм може да се користат рампи. Дозволен нагиб на рампата е 5% додека нејзина минимална ширина во надворешен простор е 120цм, додека во внтрешен простор 90цм. Доколку станот се наоѓа на повисоките катови во зградата треба да се постави лифт со најмали внатрешни димензии од 110 х 140 цм. Вратите на лифтот треба да бидат широки најмалку 90цм и треба да се отвараат на надвор или да клизат на страна. Доколку за совладување на висински разлики над 120 цм не се користи лифт, туку платформа, нејзините димензии треба да бидат 110 х 140 цм, а страните мора да бидат затворени до висина од 120 цм.

Секоја просторија внатре во станот мора да има слободна површина на движење 150 х 150 цм (круг со дијаметар од 150 цм). Ходниците мора да бидат со минимална ширина од 120 цм, без монтирани сандачиња или други испакнати додатоци кои може да го спречат слободното движење на лицата во инвалидска количка. Влезната врата во стан треба да биде со минимална внатрешна ширина на отвор од 110 цм, додека останатите врати со минимална внатрешна ширина од 80 цм.

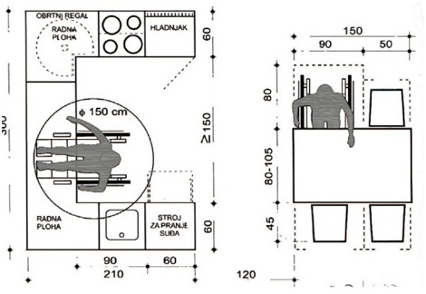
Растојанието во кујната помеѓу елементите треба да биде најмалку во дијаметар од 150 цм, со што ќе се осигура вртењето на инвалидската количка и со тоа користење на кујната. Работната плотна се изведува конзолно до најмала долна висина од 70 цм и  горна со најмногу 85 цм и длабочина од 60 цм. Горните висечки елементи се поставуваат со долниот раб на 120 цм. Масата за јадење мора да биде долг 150 цм, како би се овозможила површина од 90 цм за лицето во инвалидска количка.

Во спалната соба пред креветот треба да се осигура слободен простор во круг со дијаметар од 150 цм како би се осигурало вртењето со инвалидска количка, додека пред ормнот и полиците потребен е простор со ширина од 120 цм.