1На 12.12.2018 година, во ресторан „Грација“ во Куманово, во организација на Меѓуопштинското здружение на лица со телесен инвалидитет на Куманово, Кратово и Крива Паланка-Мобилност Куманово, а со финансиска поддршка од Мобилност Македонија, се одржа тематска работилница на тема: „Почит и обврска на локалната самоуправа кон човековите права на жителите на градот кои се соочуваат со пречки во мобилноста ПРИСТАПНО КУМАНОВО - ПРИСТАПНА МАКЕДОНИЈА“

Во рамките на манифестацијата беше одбележан 4 Декември-Ден на лицата со телесен инвалидитет на Македонија.

На работилницата присуствуваа 140 членови од здруженијата членки на Мобилност Македонија, а посебен белег на настанот му дадоа градоначалникот на општина Куманово, Максим Димитриевски, градоначалникот на општина Кратово, д-р Љупчо Бојаџиев, советниците на Претседателот на Владата на РМ, Спасе Додевски и Сандра Поповска, претставници на секторите за урбанизам од повеќе општини, претседатели на национални инвалидски организации, претставници на институции и подрачни единици на фондовите, претставници на ортопедски куќи и други гости.


Градоначалникот на општина Куманово, Максим Димитриевски, ја отвори работилницата со поздравен говор и сублимирање на условите на пристапност во општина Куманово, како и соработката со невладиниот сектор, особено со Мобилност Куманово, во однос на подобрување на положбата на лицата со инвалидност во оваа насока. 
Детско-младинскиот ансамбал „СРМА“ од Куманово, предводени од кореографот Марјан Бошковски, настапи со орото „Водарки“, а во работниот дел на манифестацијата за активностите кои годинава ги презеде Мобилност Македонија, особено за иницијативата за измени и дополнувања на Правилникот за индикации за остварување на право на ортопедски и други помагала, како и за новиот Предлог-Закон за социјална заштита и сите интервенции кои како сојуз ги дадовме за подобрување на текстот на законот и заштита на правата на лицата со инвалидност, говореше претседателот на Мобилност Македонија, Бранимир Јовановски.
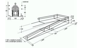
Во работниот дел од манифестацијата кој се однесуваше на темата ПРИСТАПНОСТ, беа изнесени повеќе правни акти, како дел на македонската легислатива, кои овозможуваат и наложуваат обврска за градење на општество без бариери, потоа скици, нацрти и практични примери за премостување на најчестите архитектонски бариери, а тоа се: спуштени рабници за премин преку улица, правилно обележени и во доволен број паркинг места, рампи, лифтови, вертикални и коси платформи за премостување на висински разлики, шалтери и адаптирани тоалети.
Заклучок од работилницата е дека на почетокот на идната година, здружените членки на Мобилност Македонија ќе ја започнат кампањата за „Пристапна Македонија“ во своите локални самоуправи, ќе укажат дека очекуваме сите нови стамбени и деловни градби, како и јавни површини за движење и престој, да ги содржат елементите за пристапност, опишани во Законот за градење и Правилникот за пристапност.
Исто така, при реновирање на улици, паркови и стамбено-деловни објекти, да се почитуваат овие стандарди на пристапност. На крајот на идната година ќе се собереме повторно и ќе направиме резиме на конкретни активности кои биле спроведени во локалните самоуправи. Искрено се надеваме дека ќе имаме многу за пофалба и ќе констатираме дека големиот чекор кон менување на јавната свест е конечно зачекорен и дека нештата се менуваат на подобро.
Работилницата заврши со размена на идеи, дружење и заеднички ручек.

1.jpg 10.jpg 11.jpg

12.jpg 13.jpg 14.jpg

15.jpg 16.jpg 17.jpg

18.jpg 19.jpg 2.jpg

20.jpg 21.jpg 22.jpg

23.jpg 3.jpg 4.jpg

5.jpg 6.jpg 7.jpg

8.jpg 9.jpg